
4 Beds
3 Baths
2,184 SqFt
4 Beds
3 Baths
2,184 SqFt
Key Details
Property Type Single Family Home
Sub Type Single Family Residence
Listing Status Active
Purchase Type For Sale
Square Footage 2,184 sqft
Price per Sqft $274
Subdivision East Creek Farm
MLS Listing ID 6712918
Bedrooms 4
Full Baths 1
Half Baths 1
Three Quarter Bath 1
Condo Fees $100
HOA Fees $100/mo
HOA Y/N Yes
Abv Grd Liv Area 2,184
Year Built 2024
Annual Tax Amount $7,018
Tax Year 2024
Lot Size 9,216 Sqft
Acres 0.21
Property Sub-Type Single Family Residence
Source recolorado
Property Description
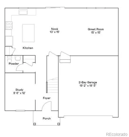
Step into this beautifully designed two-story home that blends style, function, and everyday ease. The main level showcases a chef-inspired kitchen with a large eat-in island that seamlessly connects to the inviting dining nook and spacious great room—ideal for entertaining or relaxing. A private main-floor office offers the perfect space for focus or creativity. Upstairs, the tranquil primary suite features a luxurious en-suite bath, complemented by three additional bedrooms and a conveniently placed laundry room. This fully electric home delivers energy efficiency and modern convenience throughout. Set within a vibrant community close to both urban amenities and nature's beauty, you'll enjoy proximity to Denver Premium Outlets, Orchard Town Center, and Thornton Trail Winds Park and Open Space—perfect for shopping, dining, and outdoor adventure. Move-In Ready—Your Next Chapter Starts Here!
Location
State CO
County Adams
Rooms
Basement Crawl Space
Interior
Interior Features Eat-in Kitchen, Entrance Foyer, Kitchen Island, Open Floorplan, Primary Suite, Quartz Counters, Walk-In Closet(s)
Heating Electric
Cooling Central Air
Flooring Carpet, Vinyl
Fireplace N
Appliance Dishwasher, Disposal, Microwave, Oven
Exterior
Garage Spaces 2.0
Utilities Available Electricity Connected
Roof Type Composition
Total Parking Spaces 2
Garage Yes
Building
Lot Description Corner Lot
Sewer Public Sewer
Water Public
Level or Stories Two
Structure Type Frame,Other,Stone
Schools
Elementary Schools Silver Creek
Middle Schools Rocky Top
High Schools Mountain Range
School District Adams 12 5 Star Schl
Others
Senior Community No
Ownership Builder
Acceptable Financing Cash, Conventional, FHA, VA Loan
Listing Terms Cash, Conventional, FHA, VA Loan
Special Listing Condition None
Virtual Tour https://www.lennar.com/new-homes/colorado/denver/thornton/eastcreek-farm/the-camden-collection/oliver/12256600501/virtual-tour

6455 S. Yosemite St., Suite 500 Greenwood Village, CO 80111 USA
GET MORE INFORMATION

REALTOR® | Lic# FA100085599



